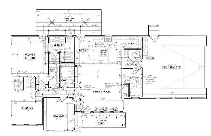
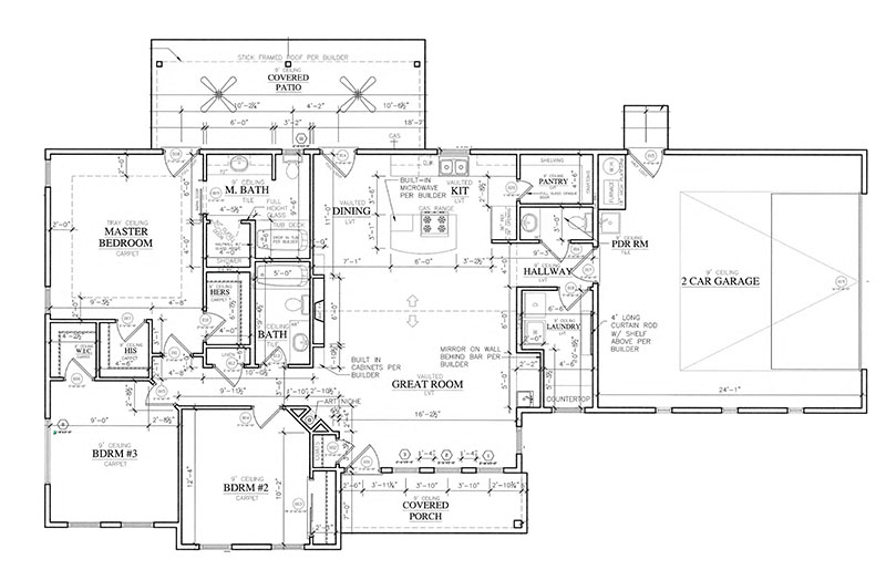
Located in beautiful Cedaredge, Colorado right next to the Golf Course. – Located on a nice sized .38 acre corner lot, this home features a side loading, oversized 2 car garage and covered patio. Luxury finishes throughout – granite counters, cream colored cabinets, luxury vinyl plank flooring, cozy and modern electric fireplace with tire surround and built in cabinets, and a wet bar! Large walk-in pantry. There is a spacious and oversized laundry room with folding table and hanging bar. A powder bath off the garage keeps the home tidy! Coffered ceilings in the master, soaker tub and step-in shower with 2, separate, walk-in closets! Master bath features a barn door and access to the back patio! This home is finished and ready for you to enjoy those cool mountain summers!
______________
- 1,615 sq. ft.


Cedaredge is a quant town with a population of approximately 2,300. Perched on the southern slope of the Grand Mesa, the world’s largest flat top mountain, and straddling the mighty Surface Creek at the edge of the cedars it’s a beautiful place to live and play in the majestic outdoors.



